Wieś Krupy – laboratorium dziedzictwa
18 września 2018
Biuro Dokumentacji Zabytków w Szczecinie uzyskało dotację w ramach programu Kultura ludowa i tradycyjna ze środków finansowych Ministra Kultury i Dziedzictwa Narodowego pochodzących z Funduszu Promocji Kultury (umowa nr 058201/18/FPK/DIK na zadanie:
„Wieś Krupy – laboratorium dziedzictwa. Tradycja i przemiana technik budowlanych na Pomorzu Zachodnim”
Zadanie dofinansował także samorząd Województwa Zachodniopomorskiego ze środków finansowych 2018 r.

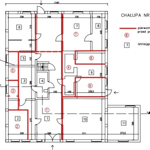
W ramach zadania planowano udokumentowanie i udostępnienie wiedzy o zachodniopomorskich tradycjach budowlanych Obszaru Kulturowo-Krajobrazowego „Kraina w Kratę”, którego jednym z najważniejszych elementów jest średniowieczna wieś Krupy (gm. Darłowo), z najstarszym w Polsce (1399/1400) kościołem ryglowo-ceglanym oraz unikatową XVIII-wieczną chałupą na wzorze saskim.
W ramach powyższego zadania zrealizowane zostały m.in.:
- skaning laserowy w 3D dla zabytkowej zagrody nr 26 w Krupach (m.in. aplikacja dostępna na dowolnym komputerze);
- dokumentacje konserwatorskie stolarek i detalu ciesielskiego w obiektach ryglowych;
- 2 warsztaty edukacyjno-budowlano-plastyczne (zagroda nr 26 w Krupach i zagroda nr 40 w Starym Jarosławiu);
- 2 prelekcje (Domasławice i Krupy w gm. Darłowo, Żukowo i Stary Kraków w gm. Sławno) dla właścicieli i użytkowników obiektów zabytkowych, urzędników samorządów, stowarzyszeń etc;
- wystawa i publikacja edukacyjno-promocyjna dla chałupy nr 26 w Krupach i kościoła w Krupach.
Projekt był realizowany w terenie od września do 30 listopada 2018 r.
Oryginalny, archiwalny wpis jest dostępny tutaj.
